売買物件詳細(中古住宅)
| 取引種目 | 売買建物 | 問合せNo | 取引様態 | 仲介 | |
|---|---|---|---|---|---|
| コメント | <収益物件>現在入居中のガレージ・ドッグラン付物件です! | ||||
| 所在地 | おいらせ町浜道178-295
|
||||
| 価 格 | 1,690万円 | ||||
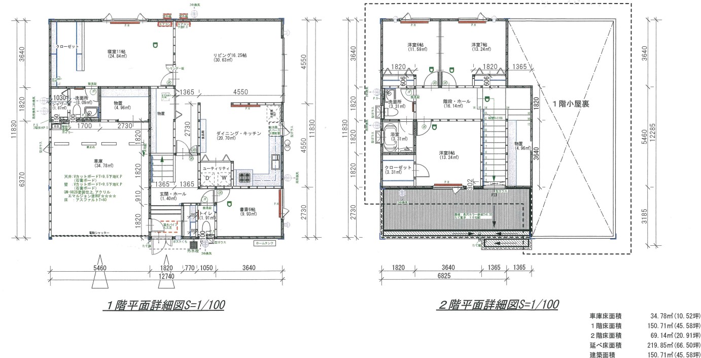
| 間取り | 5LDK | ||||
| 交 通 | 三沢十和田下田IC3.8㎞ 向山駅4.8㎞ イオンモール下田6.9㎞ 木ノ下小学校3.9㎞ 木ノ下中学校2.4㎞ | ||||
▼ 写真をクリックすると拡大表示します ▼
![]() |
![]() |
![]() |
![]() |
![]() |
|
| 土地面積 | 420.06㎡(127.06坪) | 他、私道面積 | 有 |
|---|---|---|---|
| 建物構造 | 木造合金メッキ鋼板葺2階建 | 建物面積 | 219.85㎡(66.50坪) |
| 間取内訳 | 1F:LDK・洋11帖・洋6帖 2F:洋6帖・洋7帖・洋8帖 | ||
| 接道状況 | 西側:1項3号 | ||
| 築年月日 | 平成21年2月 | 現 況 | 入居中(満室) |
| 引渡し時期 | 即日可 | 駐車場 | ガレージ2台駐車可 |
| 土地権利 | 所有権 | 地 目 | 宅地 |
| 都市計画 | 未線引 | 用途地域 | 用途指定のない地域 |
| 建ペイ率(%) | 70% | 容積率(%) | 200% |
| 学区(小) | 木ノ下小学校 | 学区(中) | 木ノ下中学校 |
| ガ ス | プロパンガス | トイレ | 水洗洋式/浄化槽 |
| 備 考 | ・特定用途制限地域:田園環境居住地域 ・掲載室内写真は、入居中につき同一間取りの別建物参考写真です。 ・実際の間取は、掲載間取図の反転となります。 |
||
| 更新日 | 2025年10月28日 | ||
取 扱 業 者 ( 問い合わせ先 )
株式会社OTK 青森県知事免許(5)第3216号
本店 青森県上北郡六戸町大字犬落瀬字坪毛沢482番地
TEL:0176-51-5156(六戸本店) FAX:0176-51-6321 メール:offo@otk-misawa.com














